このページを印刷
ウィンドウを閉じる
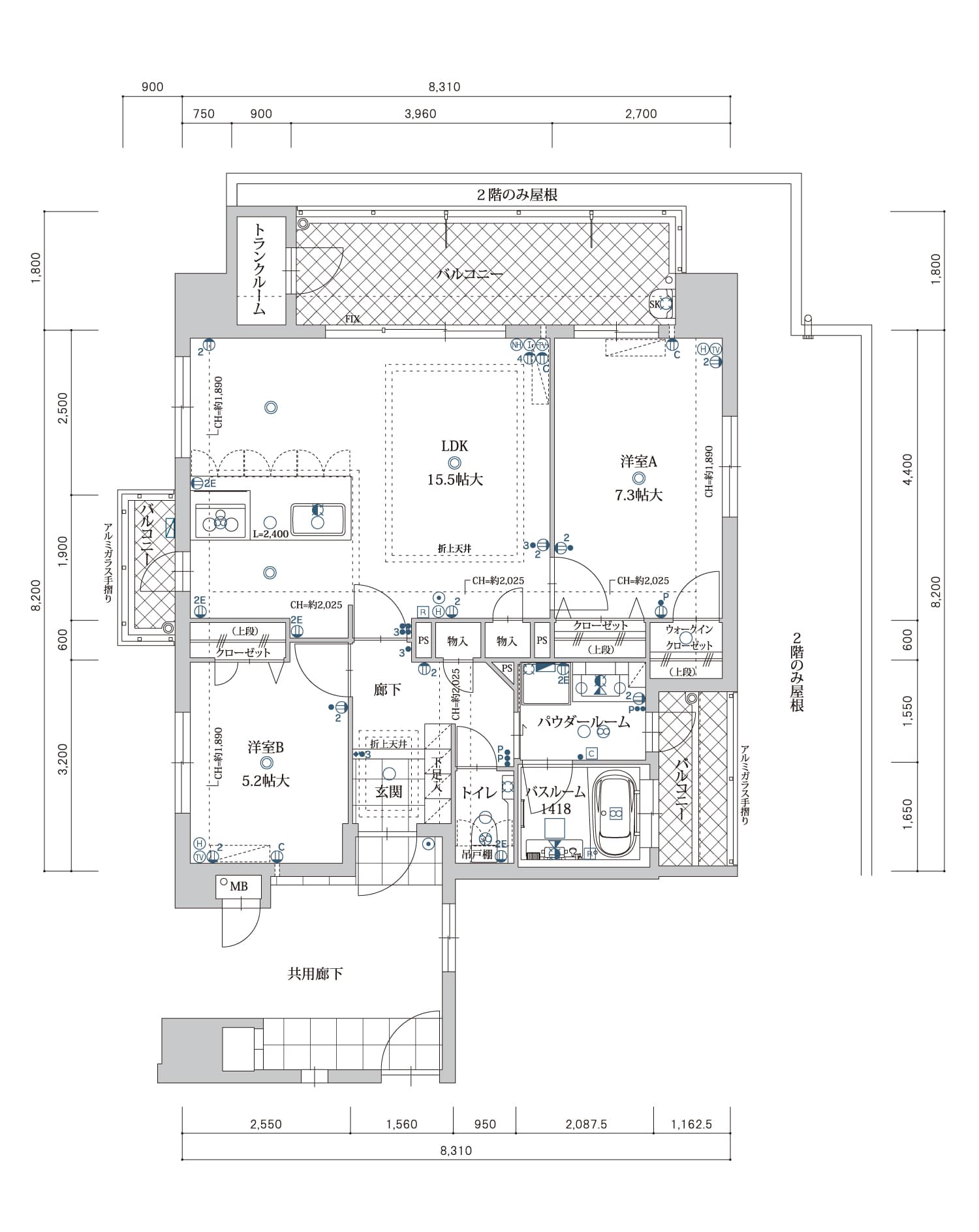
I
type
2LDK
専有面積
64.00
m
2
(約19.36坪)
バルコニー面積
15.87
m
2
(約4.8坪)
トランクルーム面積
1.62
m
2
(約0.49坪)